What’s going on with the 303 S. 51st St development?
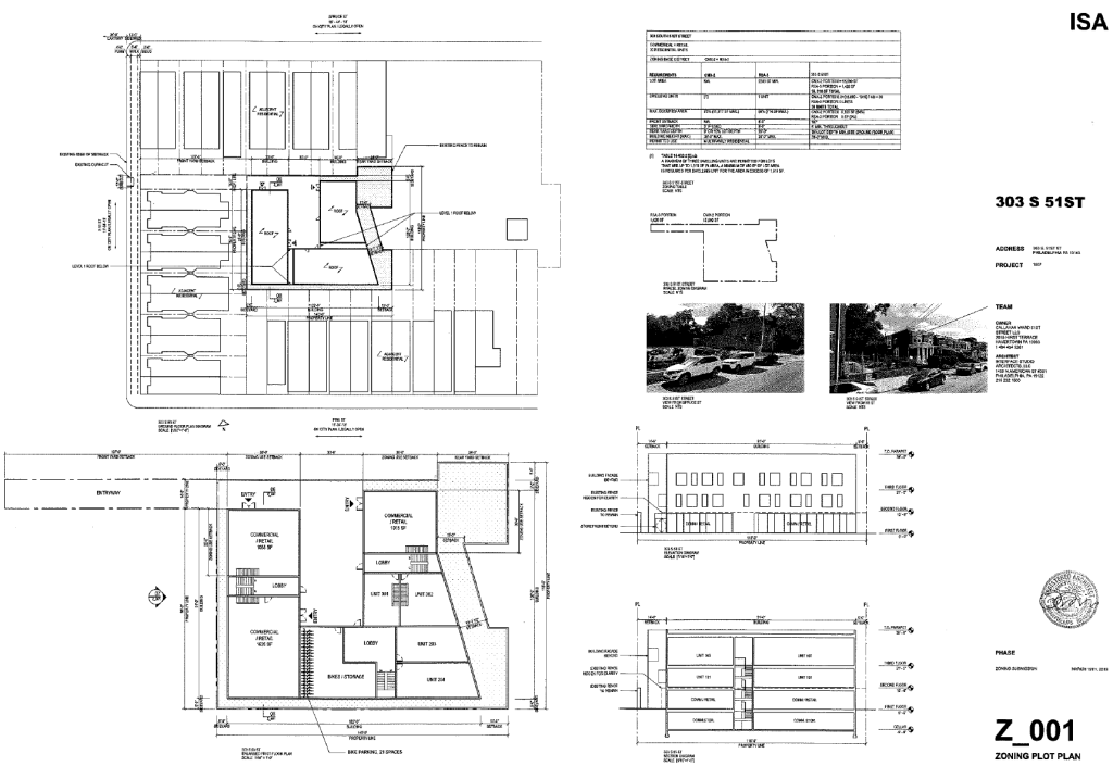
- Callahan Ward Companies (property developers) have purchased the property and can build their proposed 30 unit + 3 commercial spaces (first floor) on this property without any input from the community because its zoning designation allows for it “by-right.”
- We held a community action meeting on 7/29, shared information about the proposed project, and voted on collective issues and concerns. The concerns that rose to the top were as follows:
- Safety (General, Environmental, and Fire/Emergency vehicle access)
- Overbuild (Reduction of units, Parking); and
- Affordability [Ensuring some, if not all units are affordable; concerns about how this development will impact affordability for current residents (property taxes), etc.]
What’s been going on since our last meeting?
- NHCD steering committee members have been in touch with Callahan Ward Companies, and they have agreed to meet with the community in September (date, time, and location TBD).
- We’ve been in touch with other community organizations and organizers to learn about how to best proceed and advocate for the community’s wants and needs.
- We took requests from community meetings and outlined everything in a Community Benefits Agreement (CBA) to present to the developers.
- We have a working list of prioritized requests based on the findings from our community meetings (more details from above concerns above).
- Safety
- Additional EPA testing beyond Phase 1 (e.g., Phase 2, specifically soil samples to determine any petroleum, lead, or mercury leakage/contamination), reporting of full results to the community, and addressing the findings in a timely, appropriate manner
- Safe, Green Demolition and construction plans – public release of information on building plans/practices to avoid any structural issues/damage to surrounding homes, limit construction dust, debris, noise, and feral animal displacement; ability for community to review and provide feedback.
- Stormwater management to follow best practices, including vegetation, water gardens, and permeable paving to reduce impact on surrounding structures and aging city infrastructure.
- Building emergency and escape plans – public release of information on fire/other emergency situation preparation, protocol, and escape plans; ability for community to review and provide feedback.
- Safety
- Overbuild
- Reduction of units – request to reduce from 30 to 10 or home ownership (e.g. condominiums).
- Commercial space variance – offer to support the developers in requesting and obtaining a variance to remove commercial space from the first floor of the development in order to reduce the number of units and lower height of buildings.
- On-site parking – request that the developers provide on-site parking for residents.
- Affordability
- Devote one (of three) buildings to affordable senior and family living.
Proposed Development Plan
